Biblioteka na Ursynowie

Biblioteka Publiczna przy ul. Bacewiczówny w dzielnicy Ursynów m. st. Warszawy

konkurs na opracowanie koncepcji architektonicznej

pow.: 3692,92 m2

zespół projektowy:

Marta Szadokierska, Dorota Wilczyńska, Stanisław Depowski

wizualizacje:

Krzysztof Nowotka RENDEREK, Piotr Zieliński XDWA, Mateusz Zawadzki

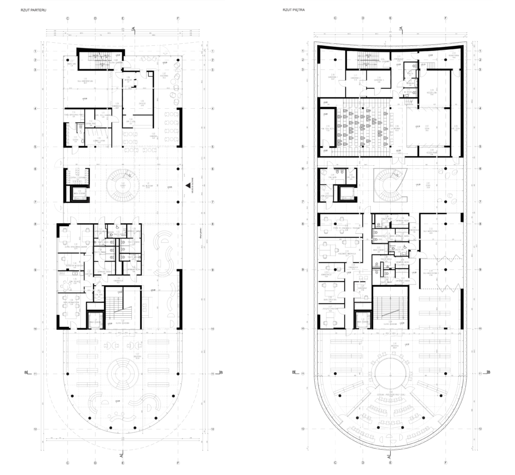
Dwukondygnacyjny budynek biblioteki ma zwartą bryłę i charakterystyczne proporcje kondygnacji parteru w stosunku do masywnego, nadwieszonego piętra. Architektura biblioteki celowo nawiązuje do modernistycznych pawilonów. Podcięty i przeszklony parter sprawia, że budynek staje się bardziej przystępny, “wciągając” użytkowników do środka. Otwarty parter został zaprojektowany jako dostępna i zapraszająca przestrzeń publiczna.  Ma pełnić nie tylko funkcjęmiejskiej biblioteki, lecz również lokalnego centrum kultury, które będzie ożywiać życie społeczne
i sprzyjać integracji mieszkańców.

Projektowany budynek jest silnie powiązany z parkiem poprzez wspólne wnętrza urbanistyczne, piesze alejki oraz przestrzenie sąsiedzkiej integracji. Forma budynku wynika z charakteru otaczającego go kontekstu. Od strony północnej budynek wpisuje się w tkankę zabudowy poprzez swoją geometryczną formę, natomiast od strony południowej, dzięki zaokrągleniu miękko wtapia się w zieleń. Dzięki takiemu zabiegowi budynek otwiera się na park. W tej części celowo umieszczono funkcję biblioteki, aby powiązać ją widokowo z zielonym otoczeniem zewnętrznym.


Funkcjonalnie budynek został podzielony na dwie części, które mogą działać niezależnie, w
różnych godzinach ustalonych przez administrację instytucji. W pierwszej części umieszczono przestrzenie biblioteki. Zostały odseparowane wrażeniowo i akustycznie od części drugiej – obejmującej salę widowiskową wraz z kawiarnią i księgarnią na parterze.
Obydwie części zostały połączone przez dwukondygnacyjną strefę holu wejściowego z foyer. Taki podział, z oddzielną komunikacją pionową dla każdej ze stref, umożliwi sprawne funkcjonowanie obiektu i odpowiada na wytyczne konkursowe. Kawiarnię połączoną z księgarnią celowo umieszczono na parterze budynku od strony głównego ciągu komunikacyjnego prowadzącego od stacji metra Stokłosy. Z tej strony znajduje się dodatkowe wejście do budynku. Od tej strony również znajduje się sala warsztatowa, która
może również być użytkowana jako przestrzeń coworkingowa.

W południowej części budynku umieszczono przestrzenie biblioteki. Na styku biblioteki i holu
głównego znajduje się strefa pierwszego kontaktu z książką. W zaokrąglonej części
zlokalizowano główną przestrzeń z umieszczonym centralnie pod świetlikiem dedykowanym
meblem do czytania. W tym miejscu na piętrze umieszczono czytelnię – miejsce cichej pracy
(z najlepszym widokiem na otaczający park). W centralnej części budynku znajduje się trzon
komunikacyjny wraz z sanitariatami. Biura zlokalizowano na parterze i na piętrze w
bezpośredniej bliskości biblioteki. Nad tą strefą znajduje się antresola – dodatkowa
przestrzeń na zbiory biblioteki. Została ona doświetlona za pomocą szedowego dachu.
Pojemność biblioteki została przewidziana na 100 tysięcy woluminów rozmieszczonych na
regałach na parterze, piętrze oraz na antresoli. W przestrzeni biblioteki oprócz regałów na
książki, zaprojektowano dedykowane meble o różnych funkcjach. Wokół świetlika łączącego
kondygnacje umieszczono stół z siedziskami. Dodatkowo między regałami zaprojektowano
modułowe meble umożliwiające zmianę aranżacji i dostosowanie jej do aktualnych potrzeb.







PRZEKRÓJ B-B



ELEWACJA WSCHODNIA