
FOREST GRID HOUSE
funkcja: DOM JEDNORODZINNY
lokalizacja: WAWER
pow.: 347 m2
inwestor: PRYWATNY
realizacja: 2025 –
wizualizacja: Michał Sajdak



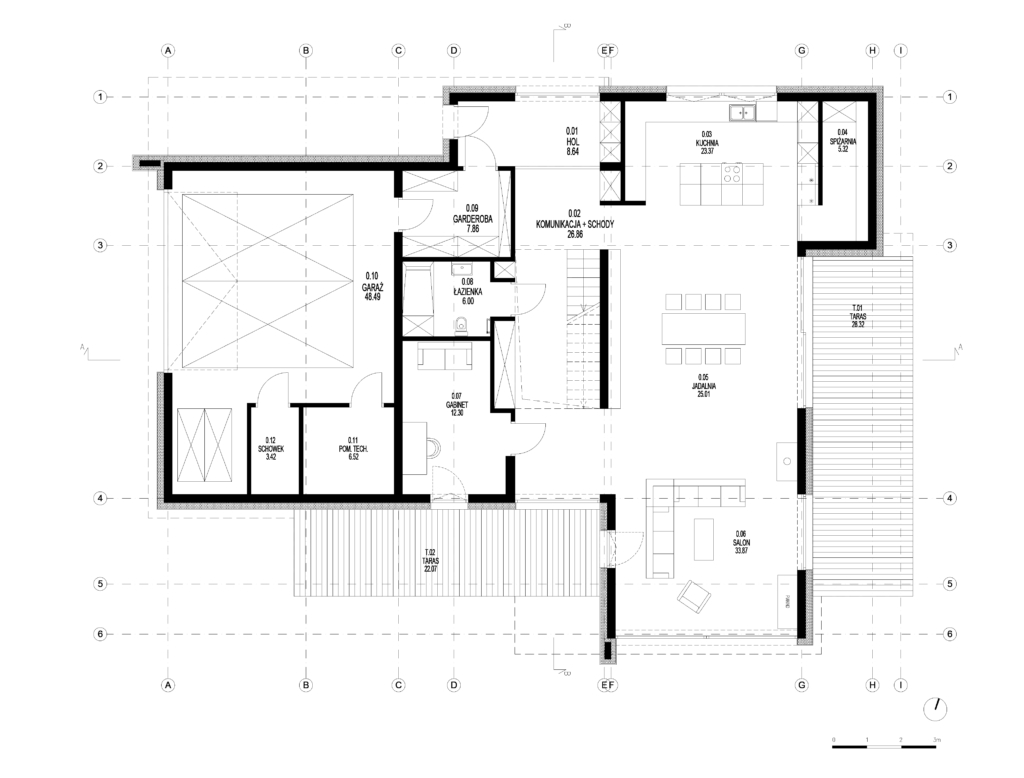
Budynek powstał w oparciu o koncepcję rozczłonkowanej formy, która harmonijnie wpisuje się w zalesiony charakter działki. Miejsce połączenia kilku brył tworzy centralny punkt domu, gdzie znajduje się jadalnia – miejsce, wokół którego koncentruje się życie mieszkańców. Poszczególne strefy domu zostały podkreślone przez horyzontalne ściany, które przenikają z zewnętrza do wnętrza, zacierając granicę między domem a ogrodem. Zaakcentowane są charakterystycznym wykończeniem z kamienia naturalnego układanego na dziko.

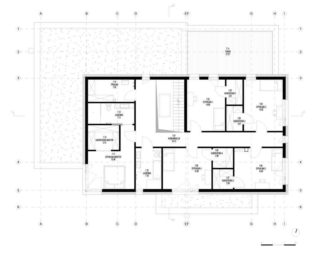
Strefa dzienna: kuchni, jadalni i salonu posiada otwarcia widokowe na różne strony świata co zapewnia dostęp do naturalnego światła przez cały dzień. Ciemna elewacja piętra, wykonana z opalanego drewna, góruje nad lekkim parterem dodając bryle ciężaru i wrażenia osadzenia w przestrzeni.

RZUT PARTERU

RZUT PIĘTRA

PRZEKRÓJ B-B

ELEWACJA POŁUDNIOWA

ELEWACJA WSCHODNIA

